проект дома
Дом по Васту (Нефтекамск)
Дом, построенный по системе архитектурного проектирования Васту-шастра. Обустройство дома базируется на идее единения с природой, гармонии со стихиями. Для этого используются геометрические узоры, принципы симметрии и соблюдения направлений.

Внутреннее пространство дома спланировано согласно золотому сечению. Использование таких правил в архитектуре и строительстве считается настоящим искусством. А изюминкой дома является световой фонарь, расположенный посреди дома. Зенитный купол обеспечивает поступление внутрь строения дневного света и положительной энергии.
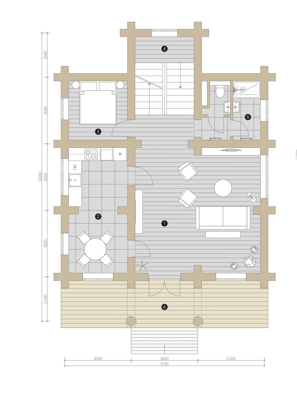
1. тамбур 4,6 м²;
2. гостиная 33 м²;
3. кухня-столовая 15,3 м²;
4. спальня 7,4 м²;
5. ванная + санузел 5,1 м²;
6. терраса 28,4 м²;

Планировки
Первый этаж
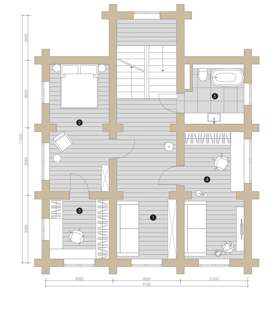
7. холл 19,5 м²;
8. две спальни по 15,5 м²;
9. гардеробная 7,3 м²;
10. ванная 7 м².
Второй этаж


Особенности проекта
Наши проекты вариативны, но для удобства мы предоставляем готовое решение. Если у вас есть желание поменять какую-либо составляющую, то это не составит проблем. Только скажите.
  • 171,5 м²
    Площадь застройки
  • 143,1 м²
    Общая площадь
    без террасы
  • Кедр
    Вид бревна
  • 320-340 мм
    Диаметр бревна
  • Канадская
    Технология
Готовый пример
Реализованный проект
Все наши проекты проверены в реализации, все технологии и процессы отточены.
© Все права защищены. Золотая усадьба, 2024
Made on
Tilda