проект БАНИ
Шато
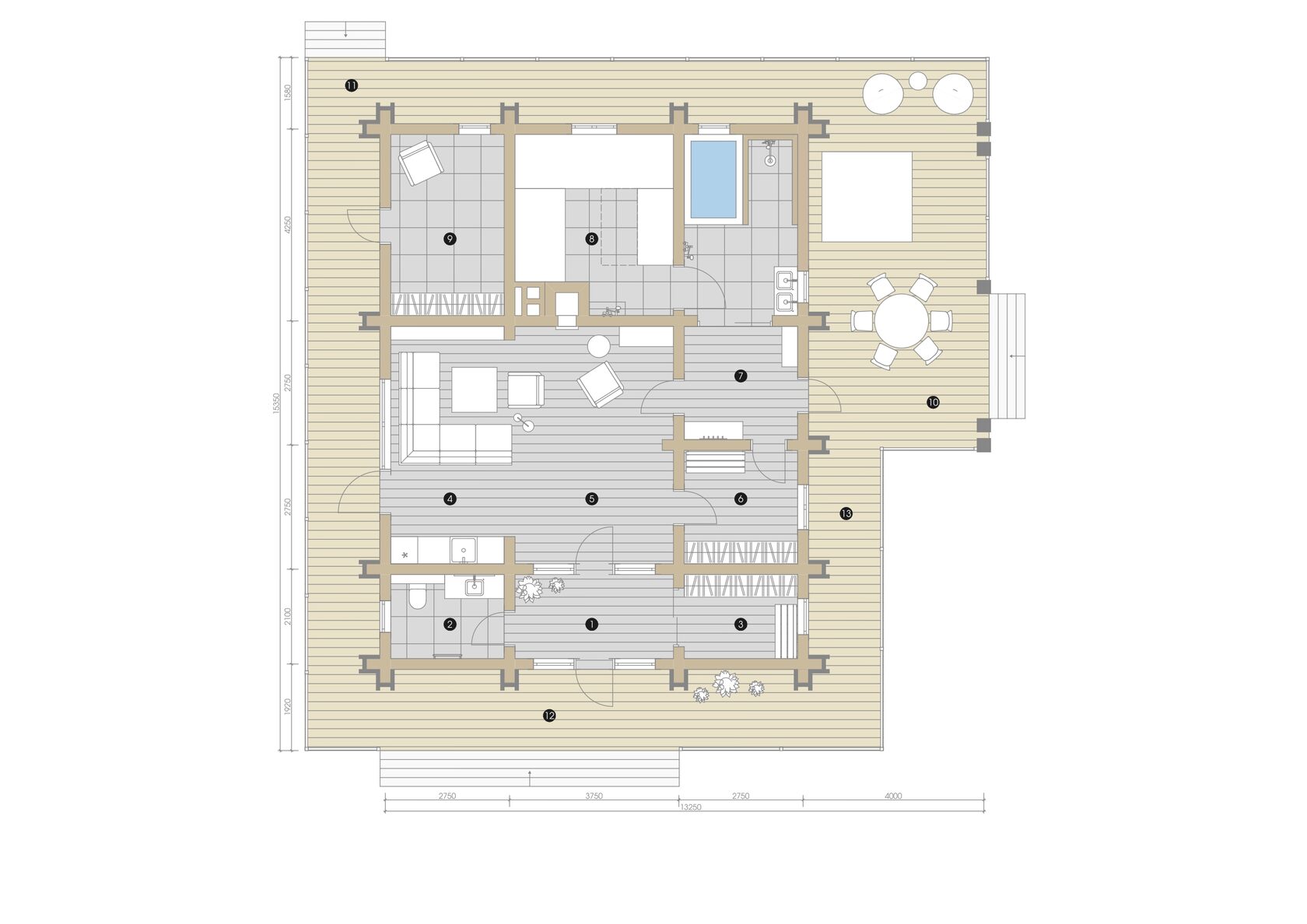
Баня в стиле “Шато”, площадью 93,9 м²! Конструктивно баня состоит из каркасных перегородок, и стен из лафета, что делает ее особенно уникальной. Лафет - это полуовальные бревна, срубленные по норвежской технологии рубки. У каждого бревна до ровной поверхности стесаны противоположные стороны. Лафет смотрится очень эффектно и не “съедает” пространство внутри и снаружи дома.

Экстерьер выполнен в сдержанных светлых тонах. Он сразу привлекает внимание большими витражными окнами, которые придают внешнему виду комплекса лёгкость и эстетичность. А широкие и большие свесы усиливают цельность объема и акцентируют его связь с ландшафтом.
  1. прихожая 6,5 м²;
  2. санузел 4,6 м²;
  3. гардероб 4,6 м²;
  4. гостиная 18,4 м²;
  5. мини-кухня 13,2 м²;
  6. раздевалка 6,3 м²;
  7. моечная 16,3 м²;
  8. парная 14,0 м²;
  9. тех. помещение 10,1 м²;
  10. веранда 12,9 м²;
  11. терраса 43,2 м²;
  12. терраса 10,5 м².

Планировки
Помещения


Особенности проекта
Наши проекты вариативны, но для удобства мы предоставляем готовое решение. Если у вас есть желание поменять какую-либо составляющую, то это не составит проблем. Только скажите.
  • 226,5 м²
    Площадь застройки
  • 93,9 м²
    Площадь
    без террасы и веранды
  • Кедр
    Вид бревна
  • 240-350 мм
    Диаметр бревна
  • Норвежская
    Технология
© Все права защищены. Золотая усадьба, 2024
Made on
Tilda