проект дома
Проект Чимган
Шикарный дом, площадью 270,31 кв.м., с камином и тремя спальнями, который мы строим в Узбекистане!

Внешний вид дома сразу приковывает к себе внимание: массивные бревна, в сочетании с отделкой из камня, смотрятся фундаментально и отлично вписываются в горную местность. А огромные витражные окна делают внешний вид дома более эстетичным, колоритным и современным. Благодаря такому решению, а также наличию второго света, внутреннее помещение будет визуально просторнее и светлее.
1. просторный холл-прихожая 11,38 м²;
2. лестничный холл 10,35 м²;
3. гостевая спальня 14,19 м²;
4. санузел гостевой 4,04 м²;
5. прихожая гостевой спальни 3,96 м²;
6. кухня-столовая 24,46 м²;
7. гостиная с камином 44,51 м²;
8. ТВ-зона 24,46 м²;
9. терраса 56,95 м²;
10. гостевая родительская 14,19 м²;
11. санузел родительский 4,04 м²;
12. прихожая мастер спальни 3,96 м²

Планировки
Первый этаж
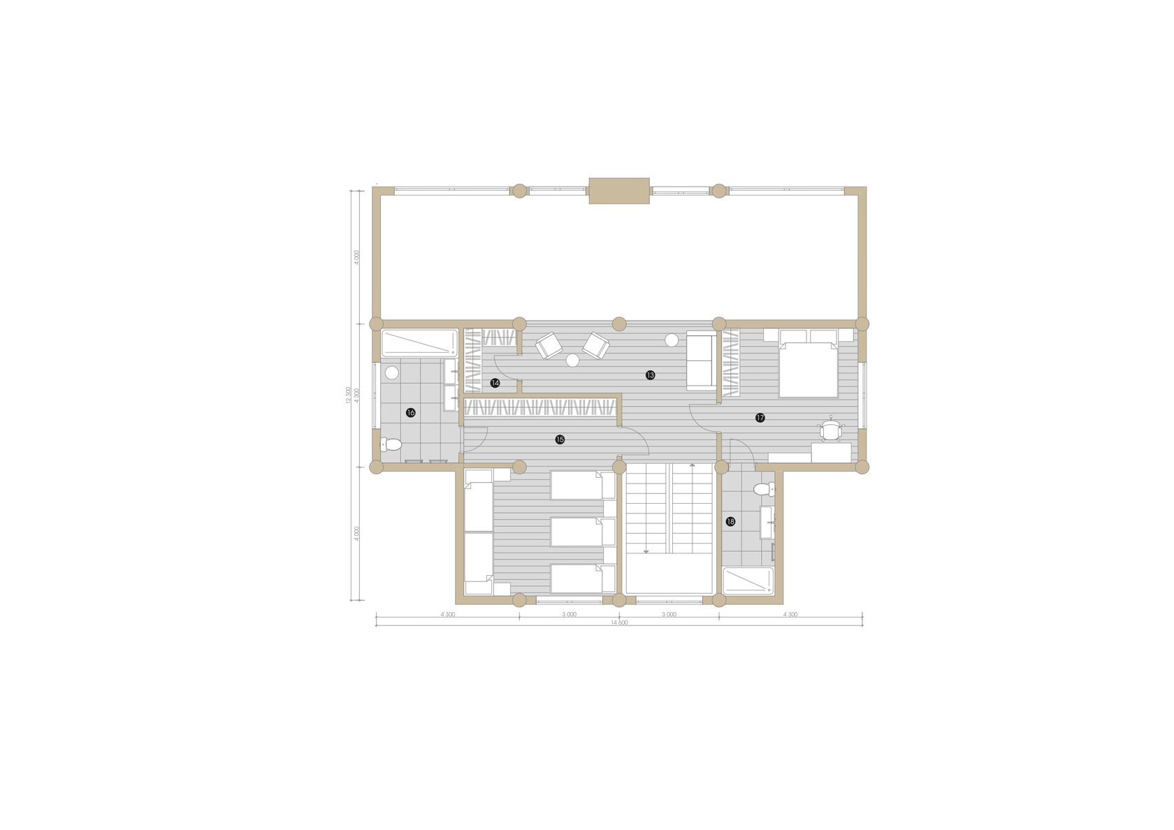
13. детская спальня 27,23 м²;
14. санузел детский 9,52 м²;
15. хозяйская спальня 16,6 м²;
16. санузел хозяйский 6 м²;
17. балкон 18,7 м²;
18. кладовая 3,17 м².
Второй этаж


Особенности проекта
Наши проекты вариативны, но для удобства мы предоставляем готовое решение. Если у вас есть желание поменять какую-либо составляющую, то это не составит проблем. Только скажите.
  • 326,4 м²
    Площадь застройки
  • 240,7 м²
    Общая площадь
    без террасы
  • Кедр
    Вид бревна
  • 380-400 мм
    Диаметр бревна
  • Канадская
    Технология
  • Парковочная зона на 3 авто
    Доп. пространство
стоимость проекта
9.692.755 рублей
стоимость указана за стеновой комплект с учетом монтажа
© Все права защищены. Золотая усадьба, 2024
Made on
Tilda