проект БАНИ
Проект 91 (Девичья Гора)
Это классический проект бани прямоугольной формы с двускатной крышей с выступом и большими панорамными окнами. Заказчик пожелал сделать внешнюю отделку в тёмных тонах. Это придаёт экстерьеру дополнительную уникальность и колорит.

Благодаря большим витражным окнам внешний вид дома становится более эстетичным. Дизайн интерьера выполнен в минималистичном стиле. Акцент мы сделали на натуральный сруб и большие панорамные окна. В отделке преобладают светлые, бежевые тона, подчёркивающие атмосферу уютного деревянного дома!
1. моечная 7,9 м²;
2. парная 8,2 м²;
3. душевая 5,1 м²;
4. санузел 3,2 м²;
5. топочная с отдельным входом со внешней стороны 2,9 м²;
6. комнаты отдыха 18,7 м²;
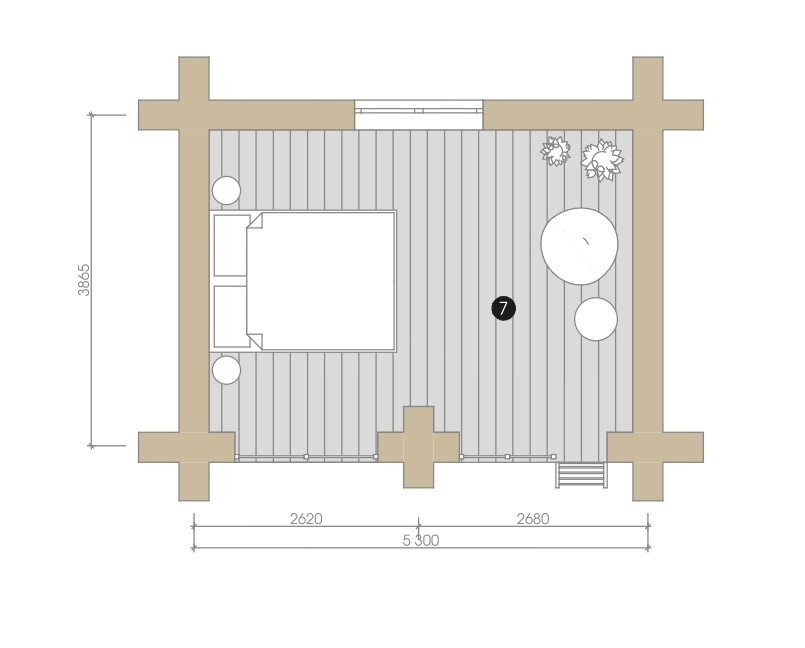
7. кухонная зона 9,2 м²;
8. открытая терраса в 61,05 м²

Планировки
Первый этаж
9. Спальное место 19 м².
Антресоль


Особенности проекта
Наши проекты вариативны, но для удобства мы предоставляем готовое решение. Если у вас есть желание поменять какую-либо составляющую, то это не составит проблем. Только скажите.
  • 108,5 м²
    Площадь общая
  • 58,7 м²
    Общая площадь
    без террасы
  • Сосна
    Вид бревна
  • 320-340 мм
    Диаметр бревна
  • Русская
    Технология
Готовый пример
Реализованный проект
Все наши проекты проверены в реализации, все технологии и процессы отточены.
стоимость проекта
3.205.320 рублей
стоимость указана за стеновой комплект с учетом монтажа
© Все права защищены. Золотая усадьба, 2024
Made on
Tilda