проект дома-БАНИ
Проект 12 (Булгаково)
Этот уютный домик состоит из двух частей.

Первая – полноценная жилая зона, которая включает кухню-столовую, гостиную, спальню и санузел. Интерьер выполнен в современном стиле с добавлением акцентных классических деталей. Изюминка гостиной – второй свет. Потолок расположен на высоте 6 м, благодаря чему пространство выглядит больше и светлее.

Из гостиной есть выход на террасу с открытой и закрытой зоной. Вторая часть – банный комплекс, состоящий из парной, моечной и комнаты отдыха, в которой также разместились и котельная, и постирочная.
1. гостиная с кухонной зоной 43,1 м²;
2. моечная 7,8 м²;
3. парная 6,4 м²;
4. раздевалка 7,3 м²;
5. тамбур 6,8 м²;
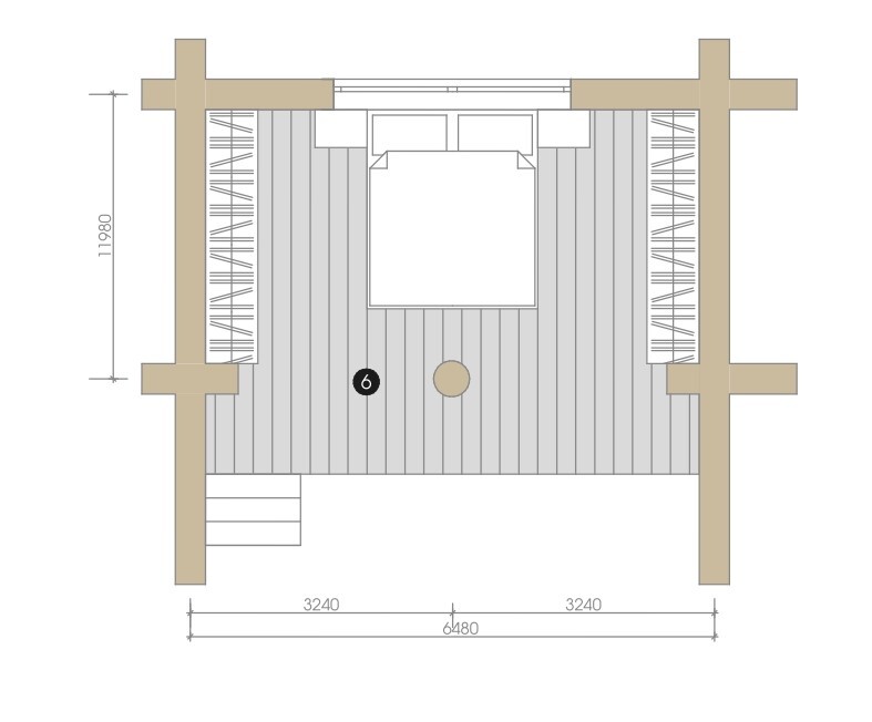
6. санузел 2,3 м²;
7. терраса 25,2 м²

Планировки
Первый этаж
8. спальня 14,6 м² и балкон, с которого открывается вид на первый этаж.
Второй этаж


Особенности проекта
Наши проекты вариативны, но для удобства мы предоставляем готовое решение. Если у вас есть желание поменять какую-либо составляющую, то это не составит проблем. Только скажите.
  • 125,3 м²
    Площадь общая
  • 93,2 м²
    Общая площадь
    без террасы
  • Сосна
    Вид бревна
  • 300-320 мм
    Диаметр бревна
  • Русская
    Технология
Готовый пример
Реализованный проект
Все наши проекты проверены в реализации, все технологии и процессы отточены.
© Все права защищены. Золотая усадьба, 2024
Made on
Tilda