проект БАНИ
Проект 108 (Толпарово)
Банный комплекс с бассейном - уникальное место для отдыха всей семьей или большой компанией!

Экстерьер выполнен в сдержанных светлых тонах. Он сразу привлекает внимание большими витражными окнами, которые придают внешнему виду комплекса лёгкость и эстетичность. Уникальность его в том, что баня объединена с бассейном: прямо из парной можно нырнуть в воду и оказаться в другой части помещения. Именно здесь расположены окна в пол, которые впускают в помещение больше света и визуально увеличивают пространство. Так, плавая и расслабляясь, гости смогут наслаждаться прекрасным видом!
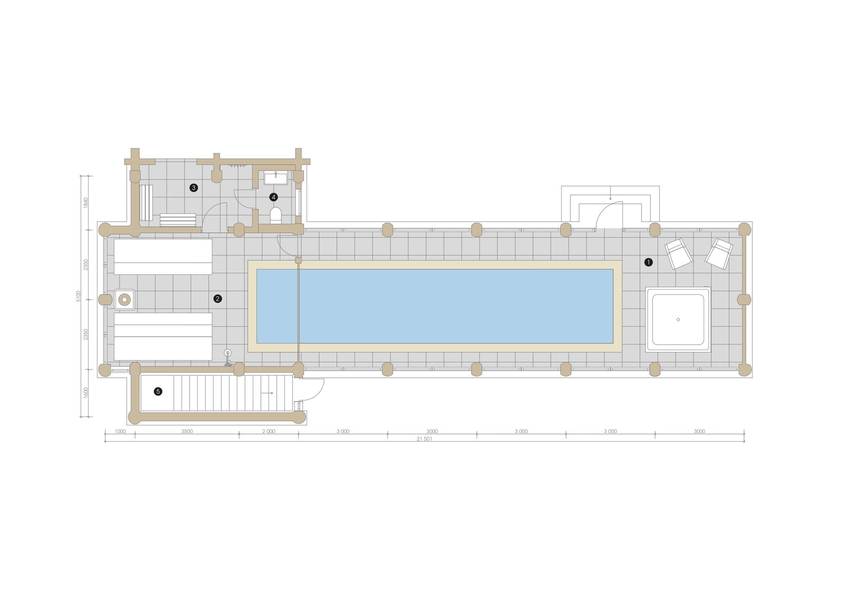
1. парная в 28 м²;
2. санузел 2,1 м²;
3. раздевалка 7,7 м²;

Планировки
Первый этаж
4. бассейн 68 м²
Бассейн
Цоколь
Техническое помещение


Особенности проекта
Наши проекты вариативны, но для удобства мы предоставляем готовое решение. Если у вас есть желание поменять какую-либо составляющую, то это не составит проблем. Только скажите.
  • 170 м²
    Площадь застройки
  • 116 м²
    Общая площадь
    без террасы
  • Сосна
    Вид бревна
  • 360-460 мм
    Диаметр бревна
  • Post&Beam
    Технология
Готовый пример
Реализованный проект
Все наши проекты проверены в реализации, все технологии и процессы отточены.
стоимость проекта
3.668.204 рублей
стоимость указана за стеновой комплект с учетом монтажа
© Все права защищены. Золотая усадьба, 2024
Made on
Tilda