проект БАННОГО КОМПЛЕКСА
Проект 102 (Ольховое)
Шикарный банный комплекс, площадью 389,9 кв.м, отлично подойдет для личного использования, или расширения номерного фонда!

Экстерьер напоминает традиционный деревянный дом с добавлением современных решений: витражных окон, просторной террасы с чанами. Дизайн интерьера выполнен в современном минималистичном стиле. Мы сохранили первозданную красоту деревянного сруба. Внутренняя отделка выполнена в светлых тонах.

Планировка комплекса – это два в одном: дом и баня.
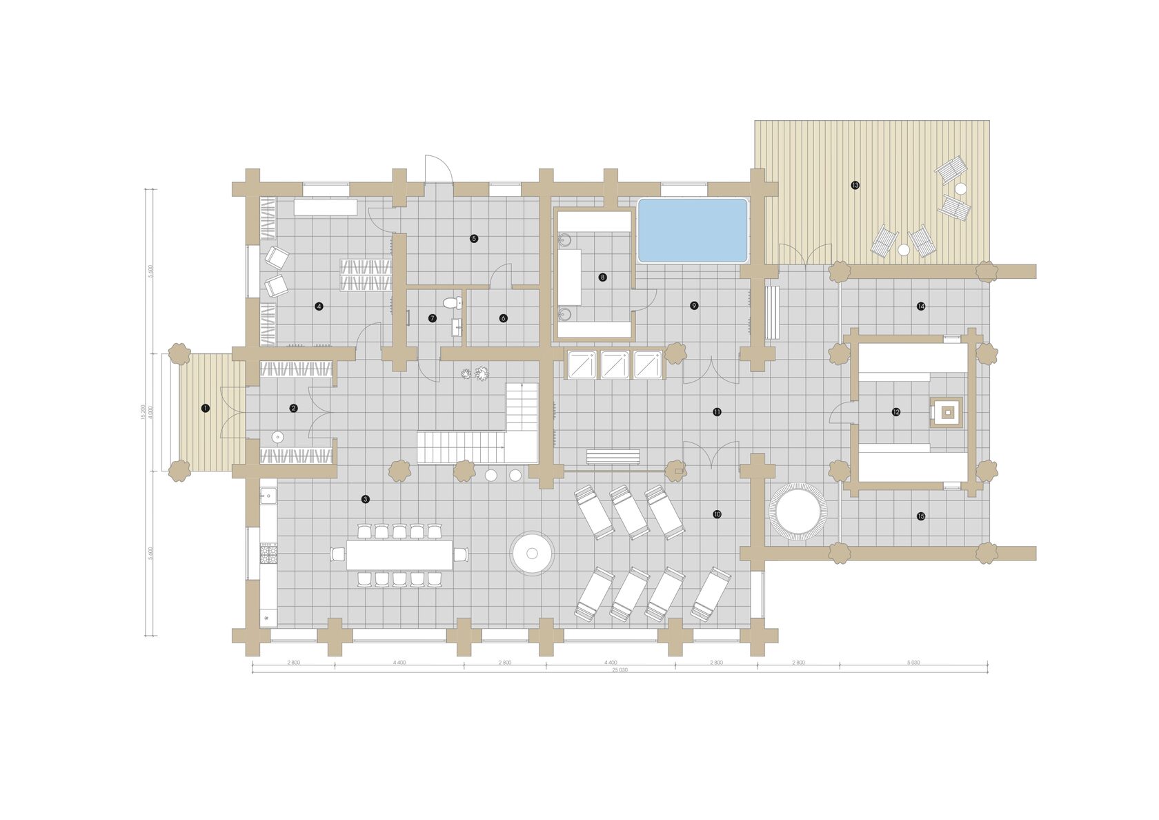
1. Гостиная - 77 м²;
2. Раздевалка - 23,14 м²;
3. Комната отдыха - 38,34 м²;
4. Хамам - 11,15 м²;
5. Моечная из липы с джакузи - 21,13 м²;
6. Холл с душевыми и купелью - 47,61 м²;
7. Баня по-чёрному - 17,56 ²;
8. Терраса с чанами - 39,82 м²;
9. Тех. помещение - 10,50 м²;
10. Дровяник - 10,50 м²

Планировки
Первый этаж
11. Две комнаты отдыха по 12,18 м²;
12. Два санузла по 3,57 м²;
13. Зона отдыха 44,14 м²;
14. Венткамера - 20,89 м².
Второй этаж
Виар-тур
Уже сейчас можете ознакомиться с проектом детально


Особенности проекта
Наши проекты вариативны, но для удобства мы предоставляем готовое решение. Если у вас есть желание поменять какую-либо составляющую, то это не составит проблем. Только скажите.
  • 393,5 м²
    Площадь застройки
  • 389,9 м²
    Общая площадь
  • Кедр & лиственница
    Вид бревна
  • 420-500 мм
    Диаметр бревна
  • Канадская Post&Beam
    Технология
  • Баня
    по-чёрному
    Доп. пространство
стоимость проекта
21.271.614 рублей
стоимость указана за стеновой комплект с учетом монтажа
© Все права защищены. Золотая усадьба, 2024
Made on
Tilda